Objektart
Adresse
Objektdaten
Informationen
Ausstattung
Details
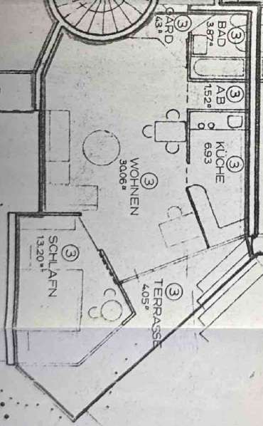
Gemütliche 2-Zimmer-Wohnung mit Balkon und grüner Umgebung in Zehlendorf
Herzlich willkommen in dieser charmanten 2-Zimmer-Wohnung in der Berlepschstraße 44, die durch ihre Lage und Ausstattung überzeugt. Mit einer Wohnfläche von ca. 62 m² bietet die Wohnung ideale Voraussetzungen für Singles, Paare oder Kapitalanleger.
Highlights der Wohnung:
- Einladender Außenbereich: Ein kleiner Balkon mit direktem Zugang zu einer gemütlichen Terrasse (Kein Sondereigentum) lädt zum Verweilen ein.
- Großzügige Fensterfronten: Beide Zimmer verfügen über große Fenster, die für viel Licht und eine freundliche Atmosphäre sorgen.
- Praktische Ausstattung: Eine geräumige Kammer bietet zusätzlichen Stauraum, während die gesamte Wohnung - einschließlich Küche, Flur und Kammer - mit hochwertigem Laminat ausgestattet ist.
- Technische Details: Die Wohnung verfügt über eine Zentralheizung, eine Gegensprechanlage sowie Telefon- und Kabelanschluss.
Außenbereich und Grundstück:
Das weitläufige, grüne Grundstück rund um das Gebäude schafft eine ruhige, naturnahe Umgebung. Für Ihr Auto steht ein praktischer Parkplatz direkt auf dem Grundstück zur Verfügung.
Diese Wohnung kombiniert moderne Annehmlichkeiten mit einem entspannten Lebensgefühl in einer der begehrtesten Lagen Berlins. Zögern Sie nicht und vereinbaren Sie einen Besichtigungstermin!
---------------------------------------------------------------------------------------
Cozy 2-Bedroom Apartment with Balcony and Green Surroundings in Zehlendorf
Welcome to this charming 2-bedroom apartment located at Berlepschstraße 44, which stands out for its excellent location and features. With a living area of approximately 62 m², this property offers ideal conditions for singles, couples, or investors.
Highlights of the Apartment:
- Inviting Outdoor Area: A small balcony with direct access to a cozy terrace (common property) provides a lovely spot to relax.
- Generous Windows: Both rooms feature large windows, creating a bright and welcoming atmosphere.
- Practical Layout: A spacious storage room adds convenience, while the entire apartment - including the kitchen, hallway, and storage room - is fitted with laminate flooring.
- Technical Features: The apartment is equipped with central heating, an intercom system, as well as telephone and cable connections.
Outdoor Space and Property:
The expansive, green property surrounding the building creates a peaceful and nature-oriented environment. A convenient parking space is also available directly on the premises.
This apartment combines modern amenities with a relaxed lifestyle in one of Berlin's most sought-after locations. Don´t hesitate to schedule a viewing!
- Parkplatz auf dem Grundstück
- Kleine Terrasse(Kein Sondereigentum)
- kleiner Balkon mit Zugang zur Terrasse
- große Kammer
- 2 Zimmer, Küche, Flur und Kammer mit Laminat versehen
- großes grünes Grundstück
- große Fensterfront in beide Zimmer
- inkl. Keller
- Zentralheizung
- Gegensprechanlage
- Telefon- und Kabelanschluss
- 62 m²
---------------------------------------------------------------------------------------
- Parking space on the property
- Small terrace (not private property)
- Small balcony with access to the terrace
- Large storage room
- 2 rooms, kitchen, hallway, and storage room with laminate flooring
- Large green property
- Large windows in both rooms
-Basement
- Central heating
- Intercom system
- Telephone and cable connection
- 62 m²
Willkommen in einem wahren Rückzugsort im grünen und ruhigen Berliner Bezirk Steglitz-Zehlendorf! Die Straße bietet eine ideale Kombination aus urbanem Leben und naturnaher Umgebung. Eingebettet in eine charmante Wohngegend, vereint diese Lage alles, was das Leben in Berlin lebenswert macht.
Die Anbindung an den öffentlichen Nahverkehr ist herausragend: Nur etwa 11 Minuten zu Fuß trennen Sie von der S-Bahnstation Zehlendorf (S1, S25), von wo aus Sie schnell in die Innenstadt und in viele andere Stadtteile gelangen. Zusätzlich sorgt die nahe Busstation(Bus115) für weitere Flexibilität und Mobilität in der Umgebung.
Für Ihren täglichen Bedarf sind Sie bestens versorgt. Rund um den Bahnhof Zehlendorf finden Sie eine Vielzahl an kleinen Geschäften, Supermärkten, Bäckereien und Cafés - ideal für Einkäufe oder eine entspannte Auszeit. Auch das Einkaufszentrum "Schlossstraße" ist nur eine kurze Fahrt entfernt und bietet ein noch größeres Angebot an Shoppingmöglichkeiten. Für schnelle Besorgungen ist der nur 250 Meter entfernte Edeka-Supermarkt ideal.
Die Umgebung punktet zudem mit einer exzellenten Infrastruktur für Familien. Verschiedene Schulen, darunter die bekannte John F. Kennedy School, das Droste-Hülshoff-Gymnasium und das Schadow-Gymnasium, sind in kurzer Zeit erreichbar. Auch mehrere Kindergärten und Spielplätze liegen in unmittelbarer Nähe und sorgen für eine familienfreundliche Atmosphäre.
Für Naturliebhaber bietet der nahegelegene Grunewald sowie das Museumsdorf Düppel (900 m) zahlreiche Freizeitmöglichkeiten wie Wandern, Radfahren und Entspannen im Grünen - ein perfekter Ort, um nach einem stressigen Tag zur Ruhe zu kommen.
Insgesamt bietet diese Straße eine hervorragende Lage, die nicht nur durch ihre Nähe zu öffentlichen Verkehrsmitteln und Einkaufsmöglichkeiten überzeugt, sondern auch durch die Ruhe und den grünen Charakter des Viertels. Ein ideales Zuhause für alle, die das Leben in Berlin genießen und gleichzeitig Wert auf eine entspannte, familienfreundliche Umgebung legen.
---------------------------------------------------------------------------------------
Welcome to a true retreat in the green and peaceful Berlin district of Steglitz-Zehlendorf! This street offers an ideal combination of urban living and proximity to nature. Nestled in a charming residential area, this location combines everything that makes life in Berlin so worthwhile.
The public transport connections are excellent: Only about a 11-minute walk to the Zehlendorf S-Bahn station (S1, S25), from where you can quickly reach the city center and many other neighborhoods. Additionally, the nearby bus stop (Bus 115) provides further flexibility and mobility in the surrounding area.
Your daily needs are well catered for. Around Zehlendorf station, you'll find a variety of small shops, supermarkets, bakeries, and cafés - perfect for shopping or a relaxing break. The "Schlossstraße" shopping center is also just a short ride away, offering even more shopping options. For quick errands, the Edeka supermarket, just 250 meters away, is ideal.
The area also boasts an excellent infrastructure for families. Various schools, including the well-known John F. Kennedy School, the Droste-Hülshoff-Gymnasium and thevSchadow-Gymnasium , are within easy reach. Several kindergartens and playgrounds are also nearby, contributing to the family-friendly atmosphere.
For nature lovers, the nearby Grunewald offers numerous recreational opportunities such as hiking, cycling, and relaxing in nature - the perfect place to unwind after a stressful day.
Overall, This street offers an outstanding location, not only due to its proximity to public transport and shopping, but also because of the tranquility and green character of the neighborhood. An ideal home for those who want to enjoy life in Berlin while also valuing a relaxed, family-friendly environment.
Falls wir Ihr Interesse geweckt haben sollten, würden wir uns freuen, Ihnen die Einheit mit weiteren Informationen oder auch einen Besichtigungstermin vorzustellen.
Erreichbar sind wir unter der Rufnummer 030-948 50 998 oder direkt mit dem Ansprechpartner Herrn Luck, Rufnummer 0176 32223 598.
Die Informationen sind Informationen des Verkäufers. Trotz gewissenhafter Erstellung des Exposés können Irrtümer vorkommen. Wir möchten Sie darauf hinweisen, dass wir eine Haftung ausdrücklich ausschließen.
Wir freuen uns über Ihre Kontaktaufnahme!
++++ Gern verkaufen wir auch Ihre Immobilie ++++ Sprechen Sie uns einfach an ++++
---------------------------------------------------------------------------------------
If we have piqued your interest, we would be delighted to present the unit to you with further information or arrange a viewing appointment.
You can reach us at +49 30-948 50 998 or directly contact Mr. Luck at +49 176 32223 598.
Please note that the information provided is from the seller, and despite careful preparation of the exposé, errors may occur. We expressly exclude liability.
We look forward to hearing from you!
++++ We are also happy to sell your property ++++ Just talk to us ++++
Energieausweis (Verbrauchsausweis)
122,90 kWh / (m²*a) Energieverbrauchskennwert
122,90 kWh / (m²*a) Energieverbrauchskennwert
122,90 kWh / (m²*a) Energieverbrauchskennwert
Weitere Informationen
| Wesentlicher Energieträger | Öl |
| Energieausweis Ausstelldatum | 1970-01-01 |
| Energieausweis Jahrgang | vor 1.5.2014 |
| Energieausweis Baujahr | 1985 |
| Energieausweis Gebäudeart | Wohngebäude |
| Heizung | Zentralheizung |
| Befeuerung | Öl |
Ich bin damit einverstanden, dass mir Karten von Google angezeigt werden. Es gelten die Datenschutzbedingungen von Google (https://policies.google.com/privacy).
Ich bin einverstanden